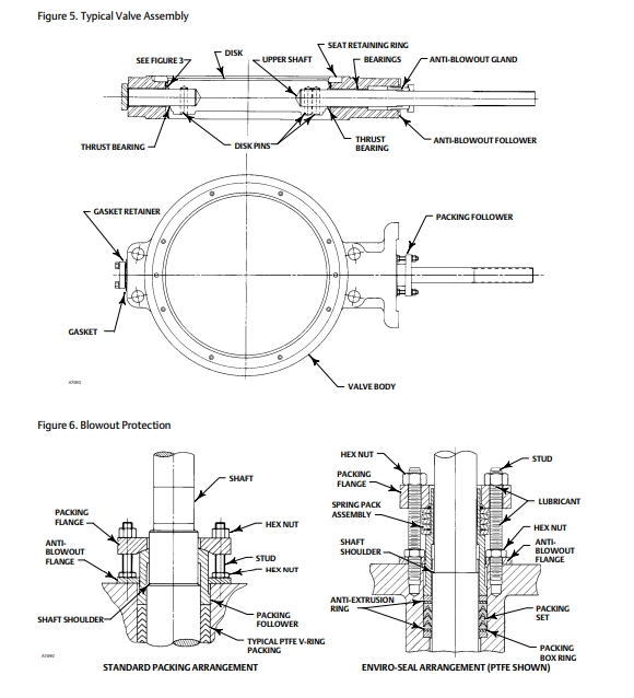
Fisher 8532 liblikklapp
Ülevaade

Toote omadused
• Loodud karmide kemikaalide jaoks{0}}PTFE iste talub happeid ja lahusteid.
•Madala pöördemomendiga konstruktsioon tähendab väiksemaid täiturmehhanisme ja madalamaid kulusid.
•Sujuv drossel kogu ulatuses.
•PTFE-pinnad ei kleepu isegi kummiga vedelikes.
• Piisavalt kerge, et hõlpsasti käsitseda, sobib suurepäraselt ümberehitamiseks.
•Kestab kauem söövitava hoolduse korral-vähem hooldust.
•ISO 5211 kinnitus sobib enamiku täiturmehhanismidega.
Tehnilised{0}}parameetrite tabel
| Tüüp | PTFE{0}}voodriga liblikklapp |
| Suuruste vahemik | 2–24 tolli |
| Surve klass | ASME klass 150–300 |
| Meediumi ühilduvus | Söövitavad vedelikud ja gaasid |
|
Parameeter |
Kirjeldus |
|
Istme materjal |
PTFE |
|
Plaadi valikud |
Roostevaba / sulam |
|
Väljalülitamise reiting |
VI klass |
|
Operatsioon |
Manuaal / Pneumaatiline / Elektriline |
|
Paigaldusstandard |
ISO 5211 |

Rakendused
Fisher 8532 Butterfly Valve - Peamised rakendused
•Tselluloosi- ja paberisüsteemid
Pakub paberitootmise protsessivee, keemiliste lisandite ja kommunaaltorustike usaldusväärset voolujuhtimist.
•Happe mõõtmise seadmed
Tagab happeliste vedelike täpse reguleerimise ja ohutu isoleerimise töötlemis- ja kemikaalide doseerimisel.
•Naftakeemia{0}}paigaldatud seadmed
Sobib abi- ja protsessitorustikuks, säilitades stabiilse töö isegi keemilises keskkonnas.
•Toidu-töötlemine
Käitleb ohutult hügieenivedelikke, täites samal ajal hügieeni- ja regulatiivseid nõudeid.
•Merekemikaalide laadimissüsteemid
Pakub usaldusväärset töökindlust kemikaalide transpordi- ja ladustamisrakenduste jaoks laevadel ja dokkides.

Miks valida meiega koostööd?
• Meie oleme allikas.
Klapid valmistame ise. Töötlemine, kokkupanek{1}}see kõik toimub meie oma poes.
Edasimüüjad tulevad meie juurde. Meie juurde tulevad inseneritöövõtjad. Miks? Ükski vahendaja ei märgi asju üles. Nii hoiame hindu all.
• Sai varu. Saada kiiresti.
Hoiame laos palju levinud suurusi. Kas vajate kiirelt asendust? Saame selle välja saada samal päeval. Kas töötate pikaajalise-projekti kallal? Varustame nii nagu lähete. Rahvusvaheline saatmine? Oleme seda piisavalt teinud-see on sujuv.
•Kvaliteet jääb samaks, partii partii järel.
Töötleme-majas. Teostame ülevaatuse-majas. See, mida saate seekord, saate järgmisel korral. Ei mingeid üllatusi.
•Kas te ei näe seda veebisaidil? Lihtsalt küsi.
Saidil leiduv on vaid osa sellest, mida me teeme. Paljud modellid pole sinna veel jõudnud. Küsi meilt. Tõenäoliselt on see meil käes. Kui me seda ei tee, aitame teil leida tee.
Alumine rida: head tooted. Sirged inimesed.

Kuum tags: fisher 8532 butterfly valve, Hiina fisher 8532 butterfly valve tootjad, tarnijad, tehas
Ju gjithashtu mund të pëlqeni
Küsi pakkumist















